
dreihochzwei ist ein junges, interdisziplinäres Planungsbüro, welches an den Schnittstellen von Rohbau und Innenausbau arbeitet. Durch unser differenziertes Wissen, welches wir uns über verschiedene Ausbildungen und unsere langjährigen Tätigkeiten in diversen Ingenieur- und Architekturbüros angeeignet haben, schaffen wir es unterschiedlichste Bauaufgaben ganzheitlich zu betrachten und zu bearbeiten. Unser handwerkliches Know-how, gepaart mit unserer Erfahrung in Planung und Bauleitung, hilft uns die gestalterischen Wünsche unserer Auftraggeber:innen in Perfektion umzusetzen.

entwurf
Wir entwickeln architektonische Konzepte, die Funktion, Gestaltung und Atmosphäre zusammenführen. Vom ersten Gedanken bis zur räumlichen Idee steht eine klare Haltung im Mittelpunkt.
planung
Auf Basis des Entwurfs erarbeiten wir präzise und umsetzbare Ausführungsplanungen. Technische, wirtschaftliche und gestalterische Anforderungen werden dabei ganzheitlich koordiniert.
bauleitung
Wir begleiten die Umsetzung vor Ort und sichern Qualität, Termine und Kosten. Als Schnittstelle zwischen Planung und Ausführung sorgen wir für einen reibungslosen Bauprozess.
möbelbau
Durch unsere langjährige Erfahrung im Möbelbau verfügen wir über ein tiefgehendes konstruktives Verständnis. So entstehen maßgeschneiderte Lösungen, die Gestaltung und Handwerk vereinen.
Wir verstehen uns als kompetenten Partner im Bereich der Entwurfs-, Ausführungs- sowie Detailplanung und übernehmen sowohl Ausschreibung als auch Vergabe ihrer Bauprojekte. Neben der Entwicklung und Konzeption von anspruchsvollen, durchdachten Möbel- und Raumkonzepten bieten wir die Möglichkeit diese vorab mithilfe von Prototyping und Modellbau erfahrbar zu machen. Um höchsten Qualitätsansprüchen gerecht zu werden ist es für uns selbstverständlich Aufgaben ganzheitlich zu betrachten. Aus diesem Grund sehen wir sowohl Bauleitung als auch die Beratung unserer Kund:innen als einen elementaren Bestandteil unserer Arbeit an.


001
Projekt: Gasteig HP8 Halle E
Bauherr: Gasteig
BGF: 300 m2
Bauzeit: 2023 – 2024
Entwurf: GMP
Auftraggeber:in: CL MAP
Leistung: LP3 – LP8 Neugestaltung Garderoben, Sanitärkerne und Stimmzimmer
Mitarbeiter:innen: Alexander Hautum

002
Projekt: Multifunktions-Sportarena
Bauherr: –
BGF: 72.000 m2
Bauzeit: 2020 – 2024
Entwurf: 3XN
Auftraggeber:in: CL MAP
Leistung: Mitwirkung LP8
Mitarbeiter:innen: Pascal Mai

003
Projekt: Marriott Hotel City West
Bauherr: EuroAtlantic Group
BGF: 35.000 m2
Bauzeit: 2020 – 2023
Entwurf: Porr Design
Auftraggeber:in: CL MAP
Leistung: Mitwirkung LP5 – LP9
Mitarbeiter:innen: Alexander Hautum, Pascal Mai, Felix Allstadt
Fotos: © CL MAP

004
Projekt: Gasteig HP8 Erweiterung Saal X
Bauherr: Gasteig München GmbH
BGF: 200 m2
Bauzeit: 2024 – 2025
Entwurf: GMP International GmbH
Auftraggeber:in: CL MAP
Leistung: LP3 – LP7 Erweiterungsbau Backstagebereich
Mitarbeiter:innen: Alexander Hautum

005
Projekt: Büro dreihochzwei
Bauherr: dreihochzwei GmbH
BGF: 130 m2
Bauzeit: 2024
Entwurf: dreihochzwei
Leistung: Entwurf und Umbau Büro
Mitarbeiter:innen: Alexander Hautum, Pascal Mai, Felix Allstadt

006
Projekt: Wohnanlage Heidepark
Bauherr: Sedlmayr Grund und Immobilien AG
BGF: 20.000 m2
Bauzeit: 2025
Entwurf: Max Dudler Architekten
Auftraggeber:in: CL MAP
Leistung: Signaletik
Mitarbeiter:innen: Felix Allstadt
Fotos: © CL MAP

007
Projekt: Bürogebäude München
Bauherr: –
BGF: 40.000 m2
Bauzeit: 2023 – 2028
Entwurf: –
Auftraggeber:in: CL MAP
Leistung: LP5 – Ausführungsplanung Innenausbau
Mitarbeiter:innen: Alexander Hautum, Linda Engelhardt, Robin Gower, Felix Allstadt

008
Projekt: Falkenberg Ensemble
Bauherr: WÖHR + BAUER Projekt HTW GmbH & co KG
BGF: (ober- und unterirdisch) 29.352 m2
Bauzeit: 2023 – 2027
Entwurf: Hild und K
Auftraggeber:in: Zinner Ingenieur- und Architekturbüro GbR
Leistung: Mitwirkung LP5 + LP 8
Mitarbeiter:innen: Pascal Mai, Laura Schöniger, Robin Gower
Rendering: © WÖHR + BAUER

009
Projekt: Mehrgenerationen Wohnen Tunzenberg
Bauherr: Tortuga Planungs GbR
BGF: 1.100 m2
Bauzeit: 2025 –
Entwurf: dreihochzwei
Leistung: LP1 – LP2
Mitarbeiter:innen: Felix Allstadt

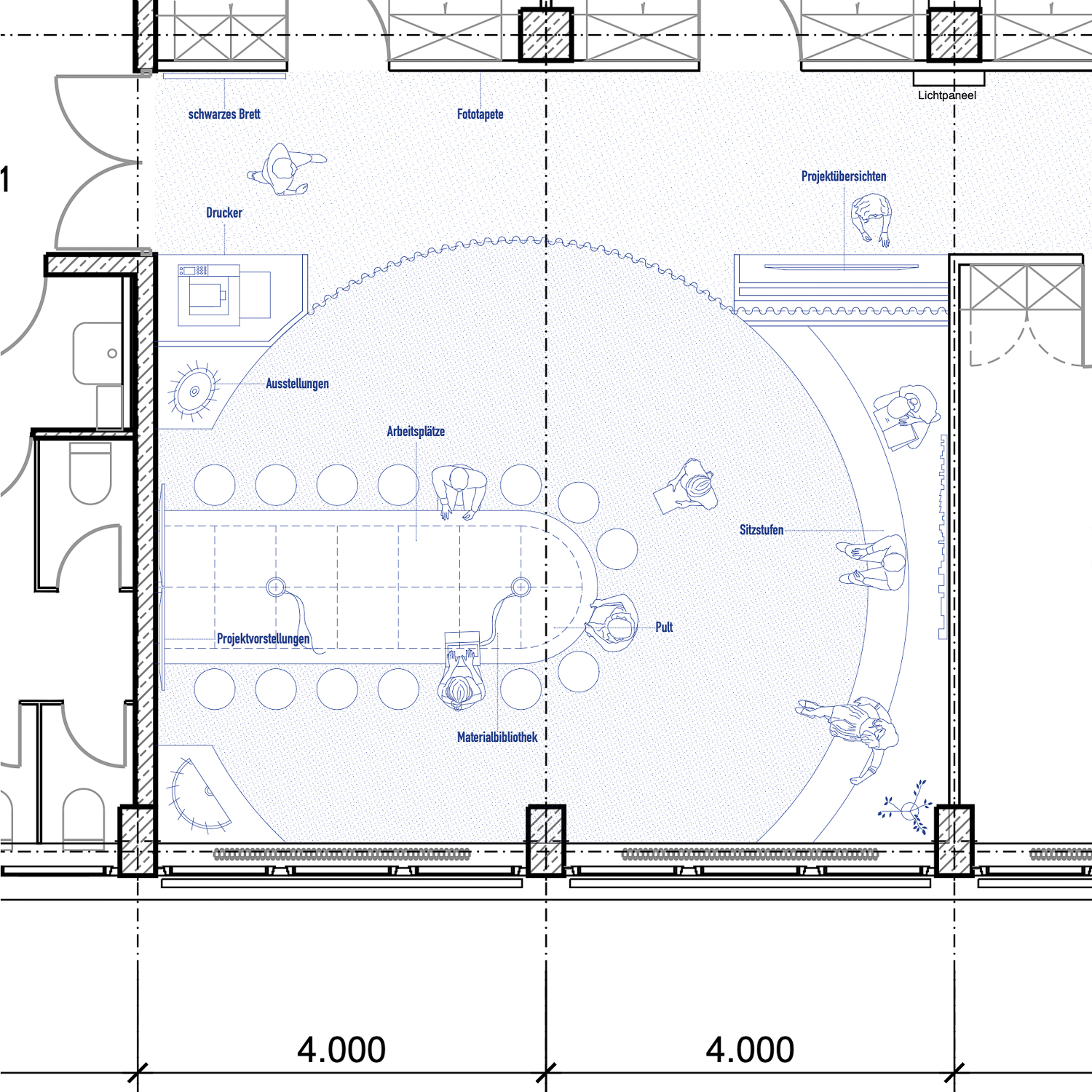
011
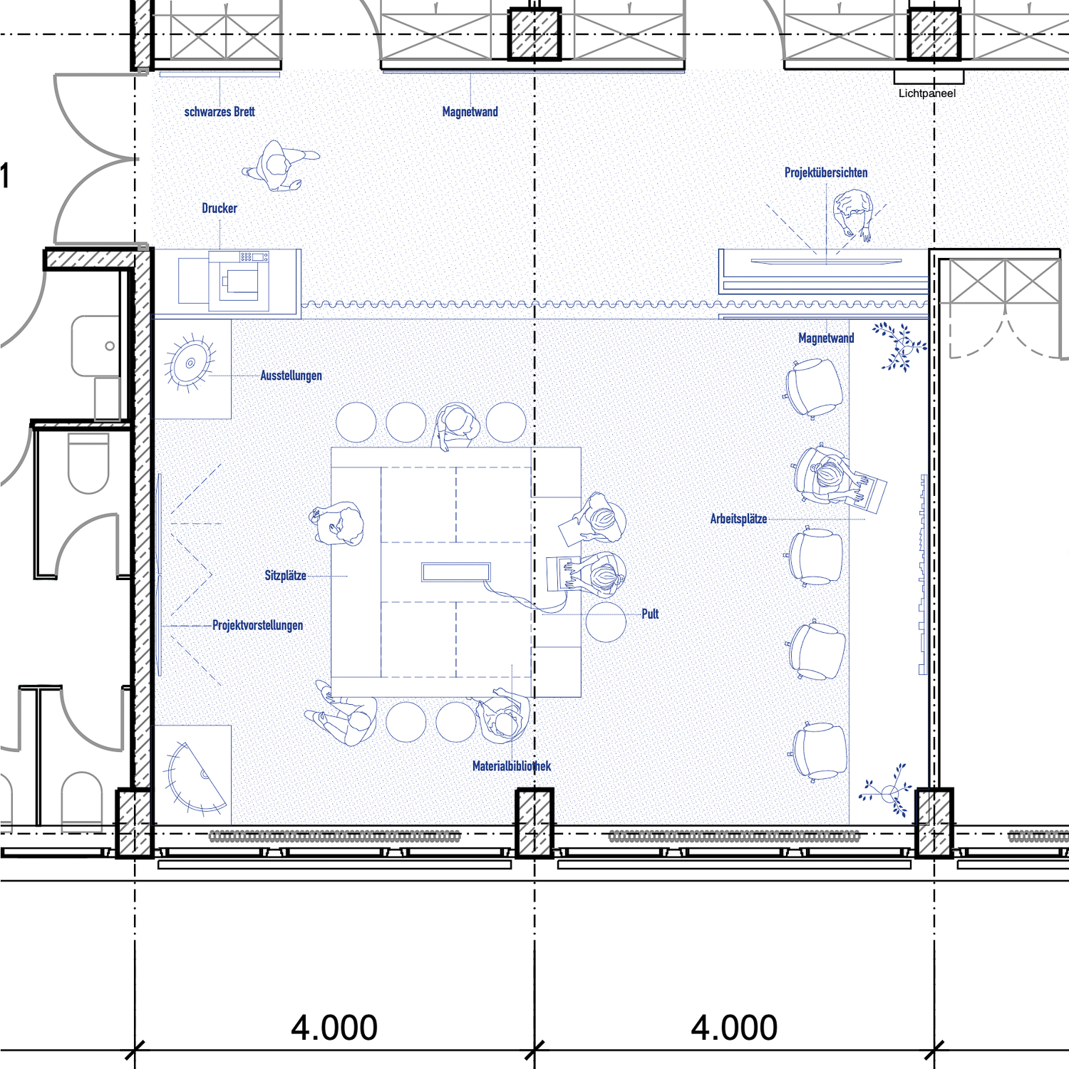
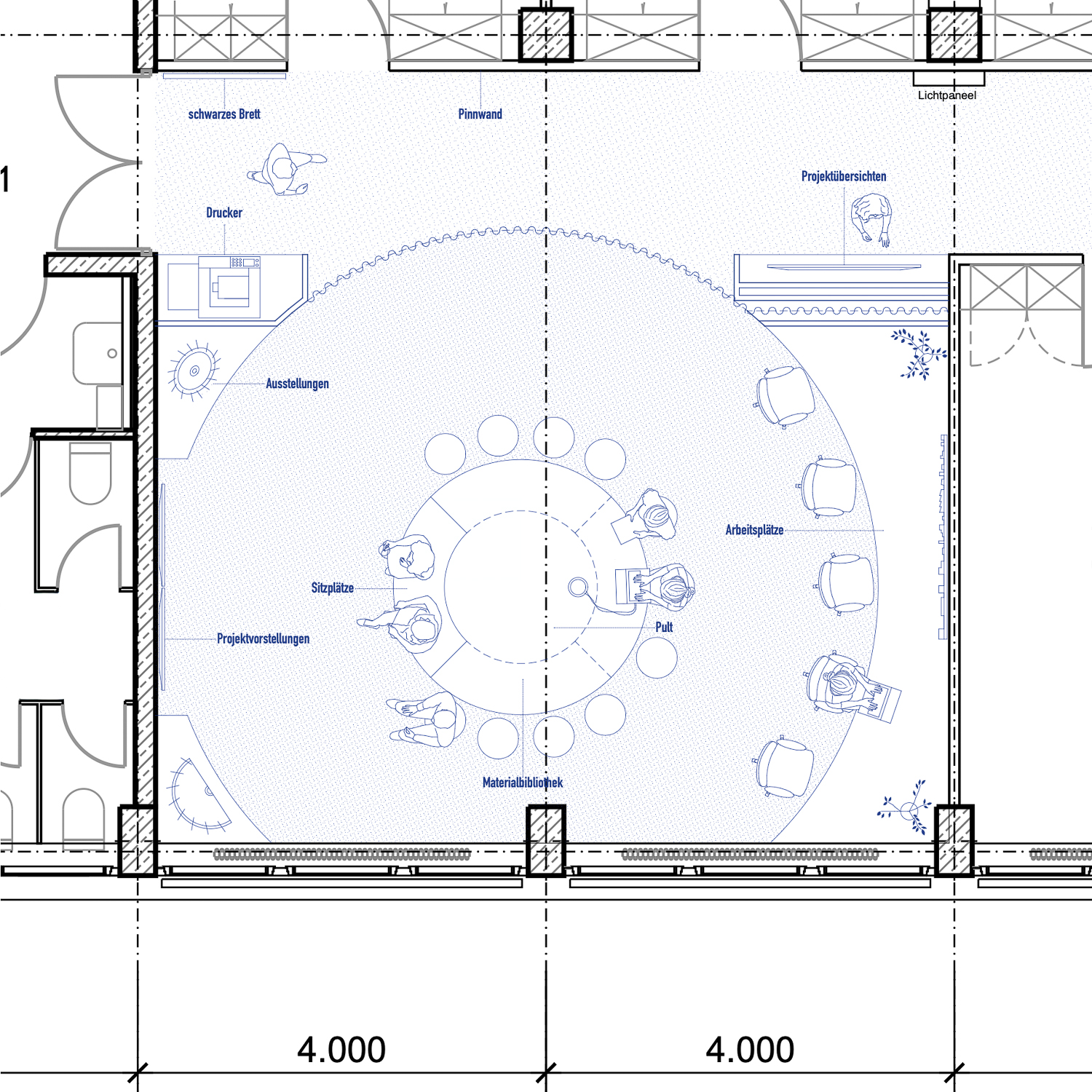
Projekt: Seminarraum Bürogebäude
Bauherr: –
BGF: 66 m2
Bauzeit: 2026
Entwurf: dreihochzwei
Leistung: Entwurf
Mitarbeiter:innen: Felix Allstadt

012
Projekt: Büro und Produktionshalle
Bauherr: Elried Markierungssysteme GmbH
BGF: 6.000 m2
Bauzeit: 2025 – 2026
Entwurf: Goldbeck Süd GmbH
Leistung: Qualitätssicherung
Mitarbeiter:innen: Pascal Mai

013
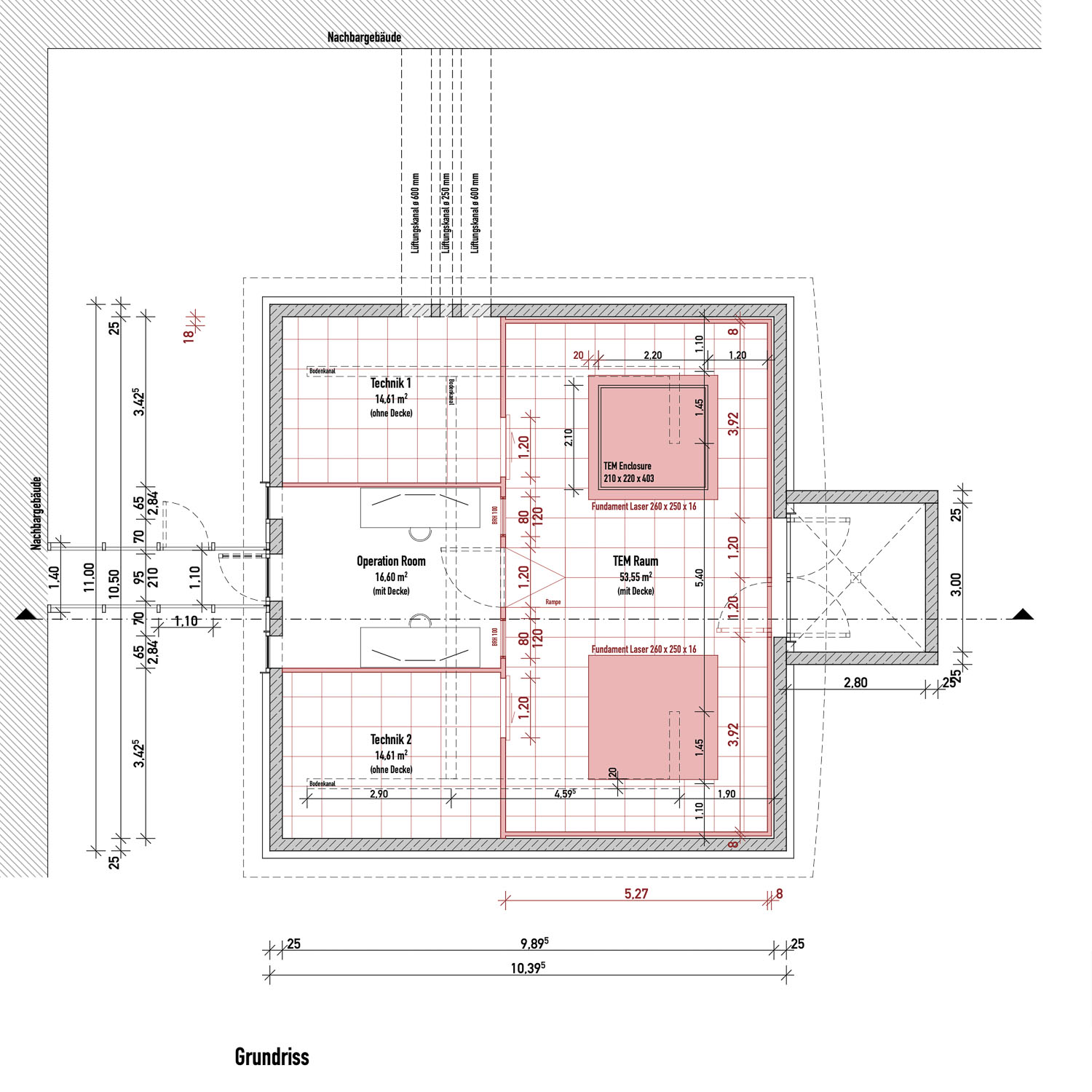
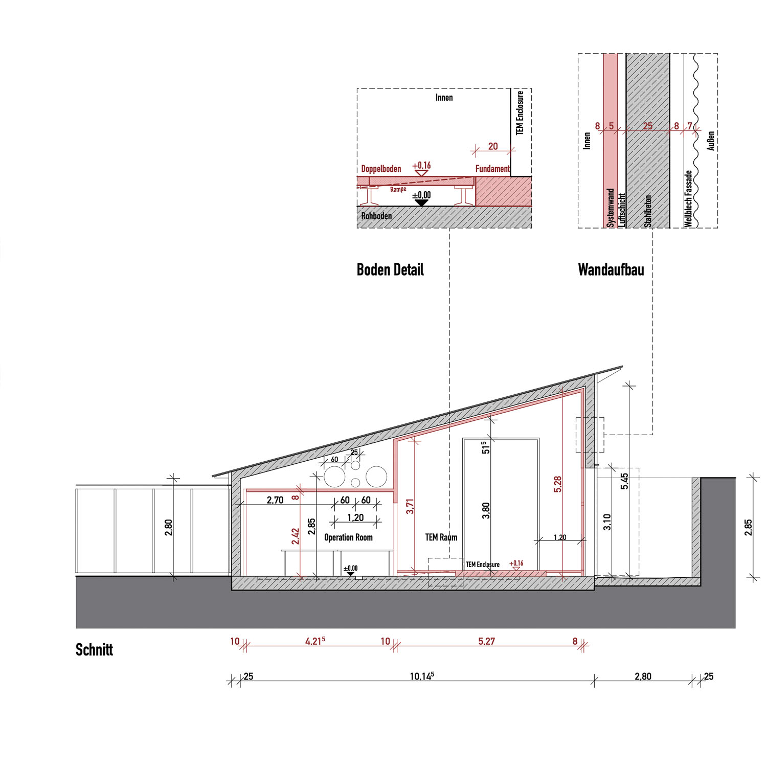
Projekt: Chemielabor Garching
Bauherr: TU München
BGF: 100 m2
Bauzeit: 2026
Entwurf: –
Auftraggeber:in: MoTo PM
Leistung: LP 4 – 5
Mitarbeiter:innen: Felix Allstadt

Bei dreihochzwei sind wir davon überzeugt, dass die Wirkung von Synergien und Diversität eine entscheidende Rolle bei der Herangehensweise und Qualität der Arbeit spielt. Es ist uns wichtig, dass jede Person ihre individuellen Stärken im Team voll entdecken, entwickeln und einbringen kann. Wir glauben fest daran, dass das Zusammenspiel aus Leidenschaft, fachlicher Kompetenz und Talent eine unvergleichliche Dynamik schafft, die es uns ermöglicht, in der Gemeinschaft mehr zu erreichen.

Robin Gower
Planung + Bauleitung

Linda Engelhardt
Planung

Pascal Mai
Bauleitung

Sophia Mahn
Planung

Alexander Hautum
Planung + Bauleitung

Laura Schöniger
Bauleitung

Felix Allstadt
Planung
























































